- La bomba debe montarse horizontalmente sobre una base y asegurarse con pernos de anclaje.
- Instale la bomba lo más cerca posible de la fuente de succión. Cuando se use un codo, válvula, etc., la succión debe tener una tubería recta de al menos cinco (5) veces el diámetro de la tubería.
- La tubería de succión no debe ser más pequeña que el tamaño de succión de la bomba.
- Las tuberías y válvulas deben tener un soporte independiente. No permita que la bomba soporte el peso de la tubería.
- Toda la tubería de succión debe ser lo más directa y corta posible con la menor flexión posible. La flexión excesiva y la longitud de succión de la bomba darán lugar a la distorsión del flujo y la cavitación de la bomba.
- La velocidad de succión no debe exceder los 6.5 pies por segundo. Los líquidos viscosos y calientes tendrán un efecto sobre la velocidad.
- Si se necesitan reductores o aumentadores, se debe tener cuidado para no atrapar aire.
- Use un manómetro de vacío en la línea de succión y debe estar lo más cerca posible de la succión de la bomba. Esto es para monitorear el rendimiento de la bomba mientras está en funcionamiento.
- Las válvulas se pueden instalar en el lado de succión para permitir el mantenimiento y el servicio. NUNCA use la válvula para limitar el flujo hacia la bomba.
- Presión de succión: los sistemas que utilizan alta presión de succión donde se usa una bomba para aumentar la presión del sistema son motivo de preocupación. Asegúrese de que las presiones no excedan las del diseño de la bomba; de lo contrario, podrían producirse daños graves y posibles lesiones al operador.
- Si revisa el sistema en busca de fugas con aire, no exceda los 20 PSI.
DESCARGA
- El tamaño de todas las tuberías de descarga debe determinarse por la velocidad del flujo, que no debe exceder los 15 pies por segundo.
- Debe instalarse una válvula reguladora para controlar el flujo y la presión. Precaución: la ubicación de las válvulas de retención en tuberías de descarga largas, descarga estática alta de 50 pies o más y dos o más bombas utilizadas en la misma tubería común.
- Instale un manómetro de presión de descarga para monitorear el desempeño durante la operación.
- Conecte la alimentación eléctrica al motor de acuerdo con las instrucciones de la placa de identificación del fabricante del motor.
OPERACIÓN
- El recipiente de cebado y la bomba deben estar completamente llenos de líquido antes de encender la bomba. El contenedor autocebante 750 contiene aproximadamente un galón de líquido. El contenedor de la bomba SP-TE-7-MD contiene aproximadamente 1.75 galones de líquido. El contenedor de la bomba SP-TE-8P-MD contiene aproximadamente 1.75 galones de líquido.
- No haga funcionar la bomba sin líquido. Si la bomba funciona en seco, se producirá un calor excesivo que dañará las piezas internas y podría provocar lesiones al operador.
- Abra completamente la válvula de succión.
- Abra ligeramente la válvula de descarga.
- Observe todas las conexiones en busca de fugas. Si se producen fugas, cierre todas las válvulas y repare todas las fugas antes de continuar con la operación.
- Arranque el motor y verifique que gire correctamente.
- Abra la válvula de descarga gradualmente hasta alcanzar el flujo y la presión deseados.
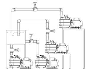
INSTALACIONES TÍPICAS DE LAS BOMBAS

PRECAUCIÓN
SI LA VÁLVULA DE DESCARGA ESTÁ TOTALMENTE ABIERTA EN EL ARRANQUE, PUEDE OCURRIR UN DESACOPLAMIENTO O ES POSIBLE UNA SOBRECARGA DEL MOTOR
- Operar la bomba por períodos de tiempo excesivos en condiciones de apagado (válvula de descarga completamente cerrada) o en condiciones cercanas al apagado puede hacer que la temperatura del líquido aumente, lo que puede ocasionar la falla de las piezas internas y la falla de la bomba.
- Los caudales deben ser controlados únicamente por la válvula de descarga, nunca por la válvula de succión.
- Si usa velocidad variable, no exceda la presión interna máxima de la bomba. Si disminuye la velocidad, el tiempo de cebado aumentará.
NOTAS DE RENDIMIENTO OPERATIVO
Altitud
Por cada mil pies, la elevación de succión máxima se reduce por un multiplicador de 0.06.
- 2500 Pies: 0.88 de elevación de succión máxima.
- 4500 Pies: 0.76 de elevación de succión máxima.
- 6500 pies: 0.64 de elevación de succión máxima.
Gravedad específica
La gravedad específica afectará la altura de succión máxima. Cuanto mayor sea la gravedad específica, menor será la elevación máxima de succión.
Divida la gravedad específica por la succión máxima. Por ejemplo, si la elevación de succión máxima de la bomba es de 20 pies y la gravedad específica es de 1.5, entonces la ecuación es 20/1.5 = 13.33 pies. Los 13.33 pies es la elevación de succión máxima.